Rezerwacja

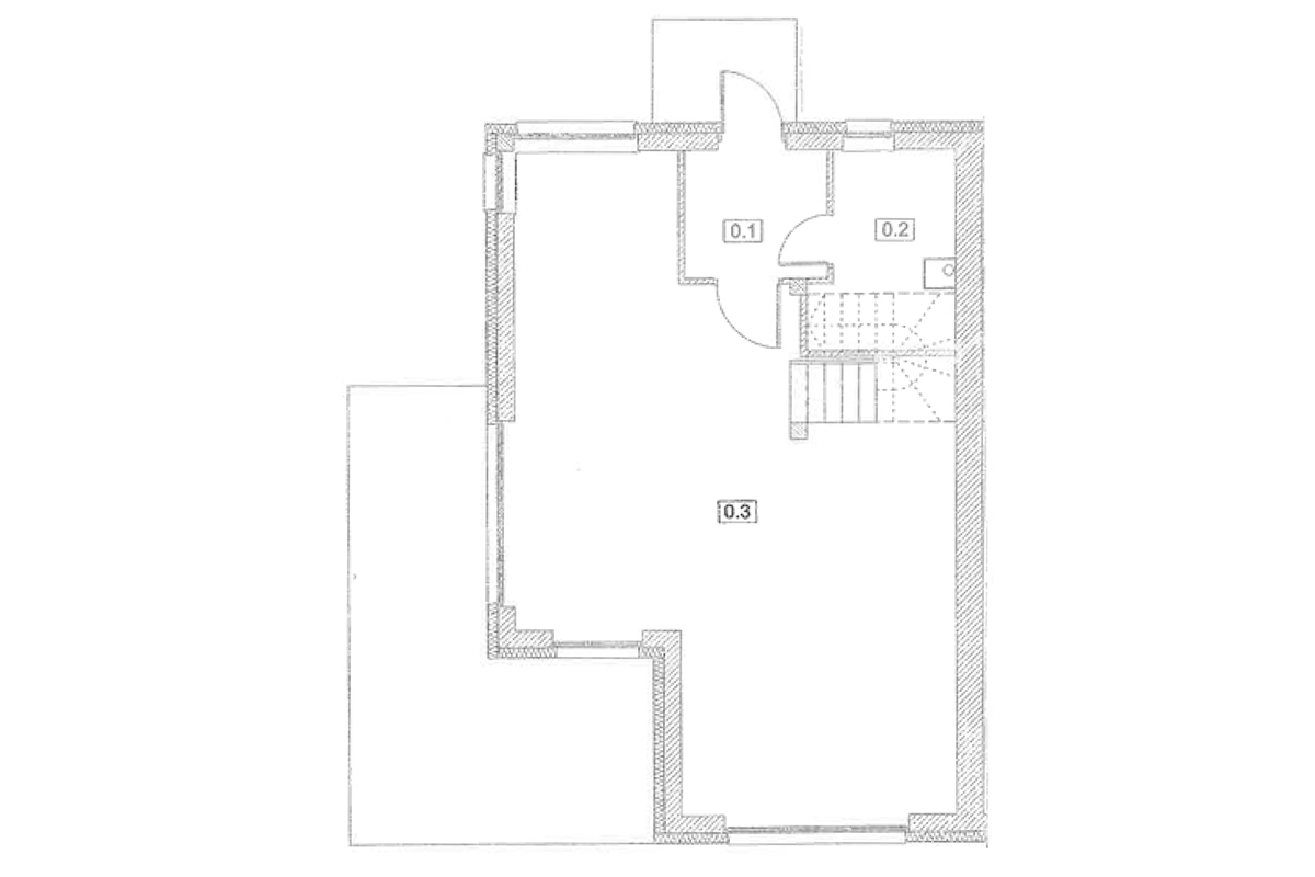
Lokal 19/2

Powierzchnia
104 m2
Działka
370 m2
Liczba pokoi
4

809 000 zł

7 779 zł / m2