Rezerwacja

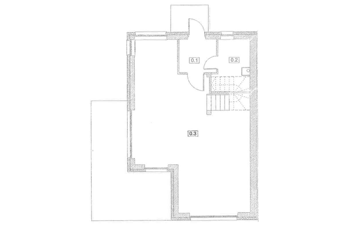
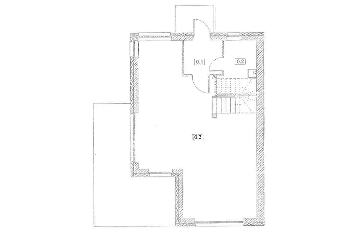
Lokal 23/1

Powierzchnia
104 m2
Działka
610 m2
Liczba pokoi
4

889 000 zł

8 548 zł / m2