Rezerwacja

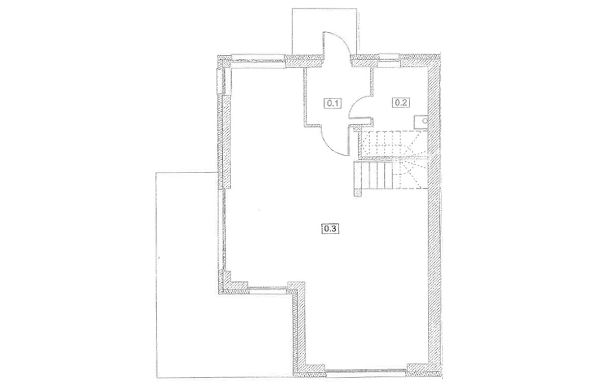
Lokal 23/2

Powierzchnia
104 m2
Działka
510 m2
Liczba pokoi
4

889 000 zł

8 548 zł / m2